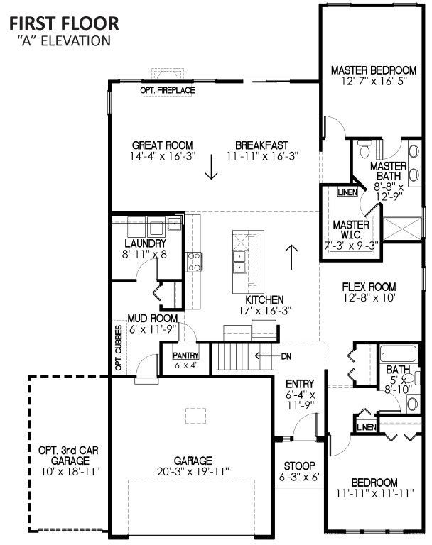
The Heritage II in Hidden Creek Villas
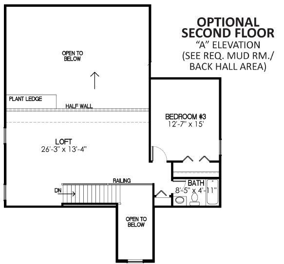
The darling 1,938 square foot Heritage-Villa is a 2 bedroom, 2 bathroom 1-story home with a full 2 car garage. Open floor plan flows from your very own gourmet kitchen with breakfast area to the inviting great room. Other convenient features are the separate laundry room, generous guest room and even an optional loft! Dramatic master suite with a large walk-In closet. The Heritage is an incredible choice!
2 Beds
2 Baths
2 Car Garage
1,938 Sq. Ft.
1-Story Villa











